A Universidade Federal de Jataí (UFJ) avança na consolidação como polo de ciência, tecnologia e inovação, com a aprovação de um projeto que prevê a construção de espaços com estruturas modernas e integradas, criando condições ideais para o desenvolvimento de novas tecnologias e soluções.
O Cipisac, Centro de Inteligência, Pesquisa e Inovação em Sistemas Agroambientais no Cerrado, foi inscrito no edital da Finep, Financiadora de Estudos e Projetos, do Ministério da Ciência, Tecnologia e Inovação (Finep Proinfra 2024 – Expansão) e foi aprovado com aporte de R$ 6,82 milhões. A nova infraestrutura vai permitir a modernização da UFJ e a inserção da universidade no ecossistema regional de inovação.
A captação do recurso foi realizada pela pró-reitoria de Pesquisa e Inovação (PRPI), que trabalha visando garantir a sustentabilidade financeira e viabilizar a materialização de projetos que colocam a UFJ como referência nacional em ciência, inovação e desenvolvimento sustentável. Nos anos de 2024 e 2025, a PRPI liderou a captação de 25 milhões de reais em recursos para pesquisa e inovação, com expectativa de captação de mais 12 milhões em chamadas que aguardam complementação financeira.
Infraestrutura contemplada inclui auditório e espaços voltados ao desenvolvimento científico e tecnológico
No novo Centro, o Núcleo de Inovação Tecnológica da UFJ (NIT), essencial para a proteção da propriedade intelectual e transferência de tecnologia, terá sede própria, ampliando sua capacidade de articulação com empresas, instituições e com a sociedade. O BeeLab, Laboratório de Prototipagem, também ganhará instalações adequadas, superando limitações atuais e potencializando a vocação para experimentação, testes e desenvolvimento de protótipos. Além disso, a proposta prevê a implantação de laboratórios de inovação (i-labs) multifuncionais, que funcionarão como hubs criativos, estimulando práticas colaborativas, empreendedorismo e parcerias estratégicas.
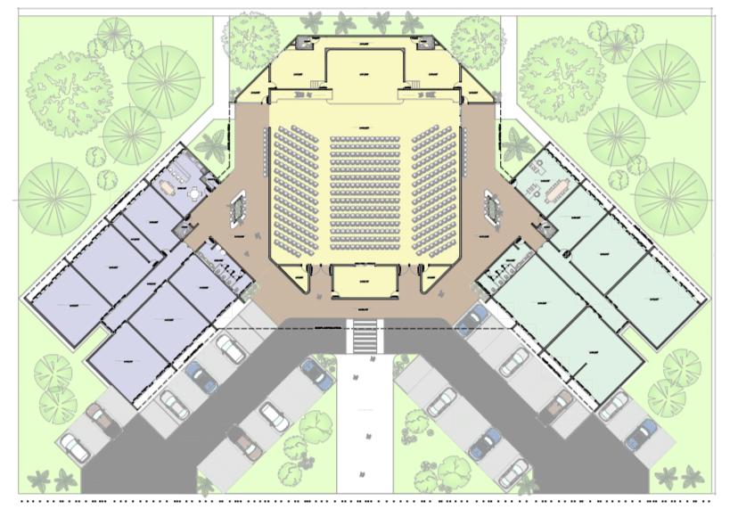
Coordenado pelo professor Hildeu Assunção, o subprojeto prevê a construção de um centro multiusuário moderno, integrando laboratórios e espaços de inovação voltados para agricultura sustentável, conservação do cerrado e comunicação científica, incluindo um auditório multiuso com capacidade para 500 pessoas.
Segundo o professor Alécio Martins, coordenador institucional da proposta, a iniciativa fortalecerá os programas de pós-graduação, impulsionará a produção científica sobre o cerrado e ampliará a interação da universidade com agricultores, empresas e a sociedade. “Esse marco consolida a UFJ como referência em ciência, tecnologia e inovação no interior do Brasil, gerando impactos positivos e duradouros para a região Sudoeste de Goiás”, destaca o professor.
Clique aqui para conferir o resultado do edital Finep
Confira a planta baixa do projeto aprovado

Clique aqui para ver a planta baixa em detalhes.
Fonte: PRPI/UFJ